1 / 17

Idrettshytta 1

Trysil, Hedmark, Norge

Idrettshytta ligger ved Trysilfjell Hytteområde .



Hotelfaciliteter

Internet
Opvaskemaskine
Mikrobølgeovn
Rygning ikke tilladt
Kæledyr ikke tilladt
Bruser
Tørretumbler
Pejs
Fryser

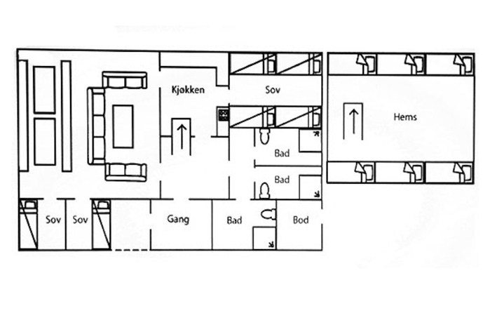
Idrettshytta ligger ved Trysilfjell Hytteområde . Hytte med hems, 12+6 sengepladser, 126 m², opholdsstue med køkkenafdeling, 3 soveværelse, 3 brusere, 3 WC.


Enheden har mikrobølgeovn, opvaskemaskine, køleskab, fryser.

Soveværelse-1= 4 køjesenge. Soveværelse-2= 1 køjeseng. Soveværelse-3= 1 køjeseng. Hems 1= 6 enkeltsenge.



Bad 1 med bruser og WC. Bad 2 med bruser og WC. Bad 3 med bruser og WC.

Opholdsstue med TV, pejs, brændeovn.


skiopbevaring, tørkerom, vaskemaskine.

Adgang til fri WiFi (med forbehold for eventuelle forstyrrelser hos bredbåndsleverandøren).



Husdyr og rygning ikke tilladt. Afstande: Afhængigt af sneforholdene kan afstanden til lift/bakke variere, skilift 100 meter, langrendsløjper 200 meter.


For at kunne bestille denne bolig skal gæsten være fyldt 18 år. Alle i selskabet skal være fyldt 18 år.Gælder ikke børn i selskab med formynder. Den som er ansvarlig for bestillingen skal bo i enheden under hele opholdet.

Du bor således

Enheden har mikrobølgeovn, opvaskemaskine, køleskab, fryser.

Bad 1 med bruser og WC. Bad 2 med bruser og WC. Bad 3 med bruser og WC.

Soveværelse-1= 4 køjesenge. Soveværelse-2= 1 køjeseng. Soveværelse-3= 1 køjeseng.

Hems 1= 6 enkeltsenge.

Andet

Opholdsstue med TV, pejs, brændeovn.

skiopbevaring, tørkerom, vaskemaskine.

Adgang til fri WiFi (med forbehold for eventuelle forstyrrelser hos bredbåndsleverandøren).

Afstande: Afhængigt af sneforholdene kan afstanden til lift/bakke variere, skilift 100 meter, langrendsløjper 200 meter.

Husdyr og rygning ikke tilladt.

For at kunne bestille denne bolig skal gæsten være fyldt 18 år. Alle i selskabet skal være fyldt 18 år.Gælder ikke børn i selskab med formynder. Den som er ansvarlig for bestillingen skal bo i enheden under hele opholdet.

Kort over Idrettshytta 1

Adresse

Idrettshytta 1

Trysil, Hedmark, Norge

N 61.302125 E 12.194696

Hvorfor vælge Sembo?

Uovertruffen værdi og fleksibilitet

Få de bedste tilbud med vores prisgaranti og vælg betalingsmuligheder, der passer til dine behov. Vi accepterer alle større betalingsmetoder for en sikker og nem transaktion.

Betroet af rejsende over hele verden

Med over 30 års erfaring er Sembo en del af den globalt betroede Stena-gruppe. Vi er anerkendt for vores ekspertise og bakket op af brancheførende akkrediteringer, især inden for bilrejser.

Nem rejseplanlægning

Planlæg din rejse hurtigt med vores enkle bookingsystem. Brug Amelia, vores AI Trip Planner, til at sammenligne priser og finde de bedste tilbud, med sikkerheden i vores pakkebeskyttelsesplan.

Rejs på din måde

Vælg fra et bredt udvalg af hoteller, flyselskaber, ferieboliger og aktiviteter. Vores platform tilbyder fleksibilitet og bæredygtige rejsemuligheder, så du kan rejse, som du vil.